Pipishegy utca, XVII. kerület

Budapest, Magyarország

property image
property image
property image
property image
property image
property image
property image
property image
property image
property image
property image
property image
property image
property image
property image
property image
property image
property image
property image
property image
property image
property image
property image
property image
property image
property image
property image
property image
property image
property image
property image
property image
property image
property image
property image
property image
property image
property image
property image

Eladó ház

134,90 M Ft

alapterület

150 m²

szobák

5

telek

678 m²

899 333 Ft / m²
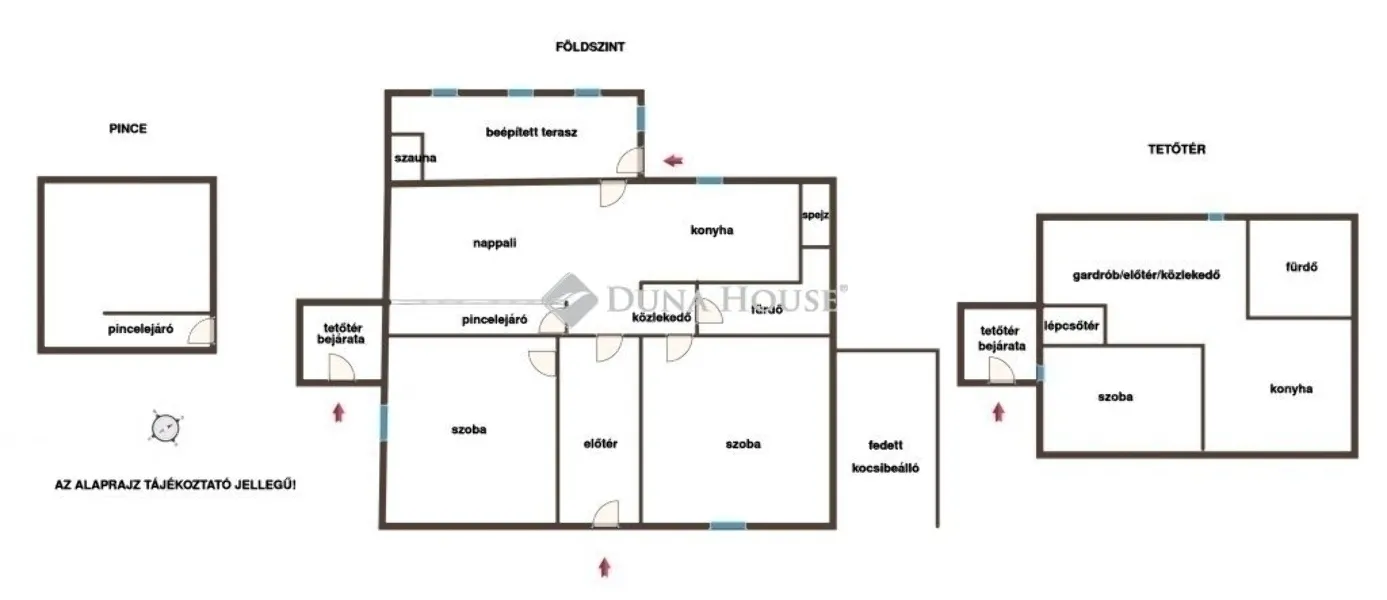
Eladó igényesen felújított, kétgenerációs családi ház Rákoskerten, termő gyümölcsfákkal hívogató tágas kerttelBudapest XVII. kerületének legkeresettebb részén, Rákoskerten, aszfaltozott mellékutcában kínálok megvételre egy nettó 150 m² (bruttó 180 m²-es), akár kétgenerációs együttélésre is alkalmas, pincével és beépített tetőtérrel rendelkező családi házat, parkosított közel 680 m²-es kerttel.Az ingatlan az 1970-es években téglából épült, majd 2020-tól folyamatos, teljes körű felújításon esett át. Kialakítás: Földszint: nappali, konyha, 3 szoba, fürdőszoba + WC, közlekedő, beépített terasz szaunával Beépített tetőtér: nappali, konyha, szoba, fürdőszoba + WC, közlekedő Kert: parkosított kert tárolókkal, kutya kennellel, fedett kocsibeállóval Pince + padlás: tárolási lehetőségekFelújítás és felszereltség: Teljes tetőszerkezet és a hideg-meleg burkolatok cseréje 10 cm külső hőszigetelés, tetőtér oldalán dupla gipszkartonos kialakítás és 25 cm, födémnél 30 cm szigetelés Víz-, elektromos- és szennyvízhálózat teljesen felújítva Új központi fűtésrendszer gázkazánnal, + kandalló Korszerű műanyag nyílászárók szúnyoghálóval ellátva Gépesített konyha, kamra Szintenként hűtő-fűtő klíma Elhelyezkedés:A környék infrastruktúrája kiváló: Néhány perc sétával elérhető iskola, óvoda, posta, orvosi rendelő és kisebb boltok BKK buszmegálló és Rákoskert vasútállomás néhány perc sétára található, Autóval 5 perc a maglódi Auchan bevásárlóközpont, az M0-s csomópontjaEz a ház tökéletes választás azok számára, akik igényes, kétgenerációs otthont keresnek csendes, kertvárosi környezetben, de mégis kiváló közlekedési és infrastruktúra kapcsolattal. A ház minden részlete a minőséget, a kényelmet és a harmóniát szolgálja. Megegyezés alapján akár rövid határidővel költözhető.Amennyiben felkeltettem érdeklődését, keressen bizalommal további információért a hét bármely napján! A Duna House teljes kínálatával állok rendelkezésére!Ingatlan eladás és vétel teljes körű ügyintézése, megbízható ügyvédi háttér biztosítása, ingyenes ingatlan tanácsadás, teljes körű és gyors bankfüggetlen hitelügyintézés, biztosítás, energetikai tanúsítvány akár hozott ingatlanra is az ország piacvezető ingatlanközvetítő hálózatának támogatásával!
user avatar

Balázs Mónika

Phone+36209520•••
user avatar

Fót

Phone+36705774•••

Nincs weboldal

Azonositó: HZ046088

Tulajdonságok

Ingatlan altípusa
családi ház
Építés éve
1970
Kilátás
utcára néző
Belmagasság
0.03 m
Fürdőszobák száma
2
Erkély mérete
23 m²

Fenntarthatóság

Fűtés
nincs

Pipishegy utca, XVII. kerület, Budapest, Magyarország

Közvetítőknek

Kapcsolat

info@mydreamhome.hu

2025 Dream Home Global, Kft.

ÁSZFAdatvédelmi szabályzatSüti szabályzatÁrak magánszemélyeknek