Dunaújváros, Magyarország

property image
property image
property image
property image
property image
property image
property image
property image
property image
property image
property image
property image
property image
property image

Eladó lakás

44,00 M Ft

alapterület

47 m²

szobák

1 + 2 fél

936 170 Ft / m²
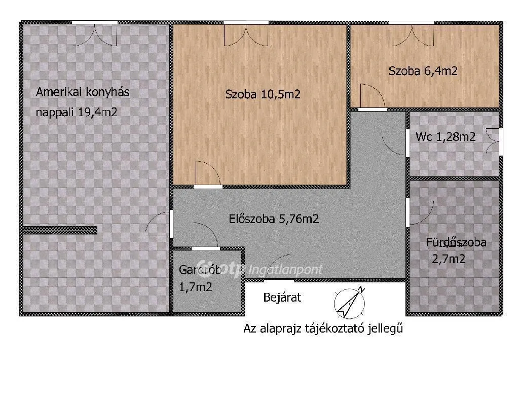
Eladó Dunaújváros központi részén egy 47m2-es 1+2 félszobás amerikai konyhás lakás. Az ingatlan egy műemlék jellegű téglaépület 4. emeletén helyezkedik el, ami kényelmesen lift használatával is megközelíthető. A lakás nagy volmenű felújításon esett át, amely során az elektromos kábelhálózatot, a burkolatokat a vizes helységekben és a szobákban is kicserélték, így a nagyszoba, a fürdőszoba, a mellékhelység és a konyha rész is teljesen új külsőt kapott. Továbbá a lakás kreatív tervezése során amerikai konyhás verziót hoztak létre a legnagyobb szobából, a konyhából pedig félszobát alakítottak ki. A fűtésért egyedi mérővel ellátott radiátorok gondoskodnak, míg a meleg vízért a gardrób helységben felszerelt Ariston bojler a felelős. Csere érettek lettek a nyílászárók is, ezek helyett, 2 rétegű, hőszigetelt ablakok lettek beszerelve. A környék infrastruktúrája lehetővé teszi a kényelmes közlekedést, akár az autót, akár tömegközlekedést részesítik előnyben. A környéken megtalálható a legtöbb oktatási intézmény, de a bevásárlási és a kulturális lehetőségek is adottak a városban. A kínálatunkból választott ingatlan finanszírozásához kedvezményes hitel- és lízingkonstrukciókat kínálunk. Az adásvételi szerződés megkötéséhez igény szerint megbízható ügyvédi közreműködést biztosítunk, és segítséget nyújtunk az adásvételhez kapcsolódó ügyek intézéséhez. Amennyiben felkeltettem érdeklődését, keressen bizalommal, akár hétvégén is. Referenciaszám: M319588 44000000 Ft Érd.: Lepsényi Kornél +3670/8840188 Referencia szám: M319588
user avatar

Lepsényi Kornél

Phone+36-70-884-0•••
user avatar

Lepsényi Kornél

Phone•••

Nincs weboldal

Azonositó: M319588

Tulajdonságok

Ingatlan altípusa
tégla lakás
Építés éve
1957
Kilátás
utcára néző

Fenntarthatóság

Fűtés
távfűtés egyedi méréssel

Dunaújváros, Magyarország

Közvetítőknek

Kapcsolat

info@mydreamhome.hu

2026 Dream Home Global, Kft.

ÁSZFAdatvédelmi szabályzatSüti szabályzatÁrak magánszemélyeknek