Kosztolányi Dezső utca

Fót, Magyarország

property image
property image
property image
property image
property image
property image

Eladó ház

142,60 M Ft

alapterület

132 m²

szobák

4

telek

423 m²

1 080 303 Ft / m²
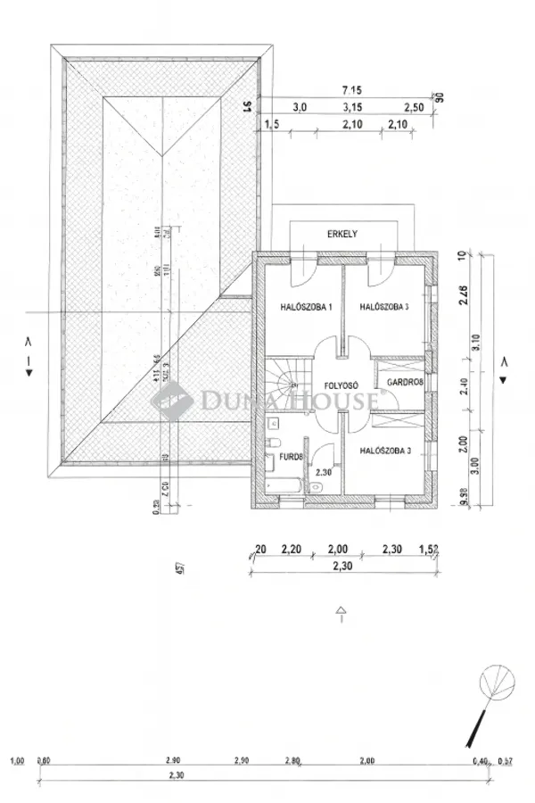
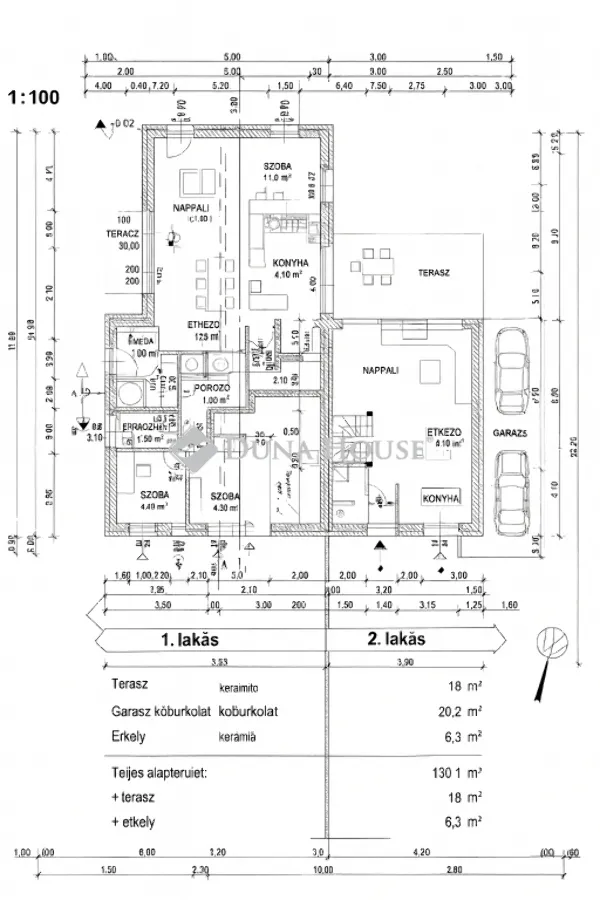
Új építésű ikerház ÁLOMOTTHON Fóton Csillagdomb projekt !!! Átadás: 2026 március! Elhelyezkedés: Fót, Csillagdomb modern, családbarát környezetIngatlan típusa: ikerház külön bejárattal és saját telekkel. Főbb paraméterek:Telek: 420 m² saját használatú területLakótér: 101,9 m² jól átgondolt, praktikus elrendezéssel. Gépkocsi-beálló: 28,20 m² Erkély: 6,3 m2Terasz: 18 m2Fűtés-hűtés: hőszivattyú, padlófűtés és mennyezethűtés A+ energiaosztálySzigetelés: 15 cm homlokzati hőszigetelésKialakítás: nappali + 3 hálószoba, két fürdőszoba, külön háztartási helyiség. Kivitelezés: magas műszaki tartalom, modern anyaghasználatKörnyezeti előnyök:újonnan kialakított, rendezett utcák, zöldövezet, családias lakókörnyezetKiváló megközelíthetőség: Budapest 1520 perc autóval, jó tömegközlekedési kapcsolatokIskolák, óvodák, bevásárlási lehetőségek a közelbenMiért érdemes megtekinteni?Ez az ingatlan a modern komfort és a nyugodt kertvárosi élet tökéletes kombinációja. Az energiatakarékos megoldásoknak és a minőségi kivitelezésnek köszönhetően hosszú távon is értékálló otthon.Minden aktuális állami támogatás és hitel igénybe vehető. Érdeklődés:további információért és helyszíni megtekintésért keressen bizalommal a megadott elérhetőségen. Ár, alaprajz és műszaki dokumentáció kérésre rendelkezésre állnak. Magas fokú hitel tanácsadásban is tudok segíteni teljesen díjmentesen! Hívjon bizalommal!
user avatar

Szaniszló Csaba

Phone+36702747•••
user avatar

Fót

Phone+36705774•••

Nincs weboldal

Azonositó: HZ058827

Tulajdonságok

Ingatlan altípusa
ikerház
Építés éve
2026
Kilátás
utcára néző
Erkély mérete
24 m²

Fenntarthatóság

Fűtés
hőszivattyú

Kosztolányi Dezső utca, Fót, Magyarország

Közvetítőknek

Kapcsolat

info@mydreamhome.hu

2026 Dream Home Global, Kft.

ÁSZFAdatvédelmi szabályzatSüti szabályzatÁrak magánszemélyeknek