Szentes, Magyarország

property image
property image
property image
property image
property image
property image
property image
property image
property image

Eladó lakás

42,00 M Ft

alapterület

53 m²

szobák

1 + 2 fél

792 453 Ft / m²
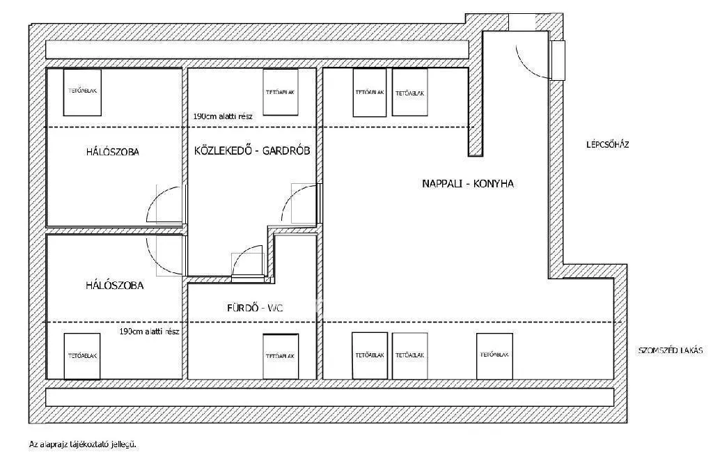
Szentesi, zöldövezeti, energiahatékony újépítésű lakások leköthetők --- az OTP Ingatlanpontnál! Már csak 4 lakás elérhető! Modern, elegáns megjelenés, korszerű anyagok és kellemes, zöld környezet jellemzik ezt a projektet. A parkosított telken két lakóház (földszint, emelet, tetőtér) valamint garázsok kerültek elhelyezésre. Az egyik lakóépületben hat lakás, a másikban nyolc lakás kap helyet. A lakásokba zárt lépcsőházon keresztül juthatunk. A tetőéri lakások alapterülete 82,8m2, melyből a hasznos (190cm magasság feletti rész) 53,56m2. A tágas amerikai konyhás nappali mellett 2 hálószoba, közlekedő ? gardrób, valamint fürdőszoba áll rendelkezésre. A fűtést és a melegvizet hőszivattyú fogja ellátni, padlófűtéssel, lakásonként egyedi mérési lehetőséggel. Az ár a kulcsrakész állapotra vonatkozik. A lakásokhoz garázs is vásárolható. Ha számít Önnek az egyedi, elegáns környezet, valamint az alacsony fenntartási költségek, akkor ne gondolkozzon tovább! További információért hívjon bizalommal! Az OTP Ingatlanpont teljes körű ügyintézéssel áll az eladók és vevők rendelkezésére. A kínálatunkból választott ingatlan finanszírozásához kedvezményes hitelkonstrukciót biztosítunk. Az OTP Banknál elérhető Babaváró, falusi CSOK, CSOK Plusz hitel és egyéb kölcsönök intézését díjmentesen vállaljuk. Az adásvételi szerződés megkötéséhez igény szerint ügyvédet biztosítunk. Irodáink Szentes, Petőfi utca 12. a buszmegálló felől, és Csongrád, Fő utca 54. szám alatt várjuk a személyes érdeklődőket. Válasszuk ki együtt az Önnek legmegfelelőbb ajánlatot banki sorban állás nélkül! Referencia szám: M293793-MDH
user avatar

Fábrik-Csendes Zsuzsanna

Phone+36-30-656-4•••
user avatar

Szentes Petőfi utca 12 - OTP Ingatlanpont Iroda

Phone+36704550•••

Nincs weboldal

Azonositó: M293793

Tulajdonságok

Ingatlan altípusa
tégla lakás
Építés éve
2025
Kilátás
utcára néző

Fenntarthatóság

Fűtés
hőszivattyú
Energetikai tanúsítvány
B

Szentes, Magyarország

Közvetítőknek

Kapcsolat

info@mydreamhome.hu

2026 Dream Home Global, Kft.

ÁSZFAdatvédelmi szabályzatSüti szabályzatÁrak magánszemélyeknek