Fábiánsebestyén, Magyarország

property image
property image
property image
property image
property image
property image
property image
property image
property image
property image
property image
property image
property image
property image

Eladó ház

17,90 M Ft

alapterület

84 m²

szobák

3

telek

948 m²

213 095 Ft / m²
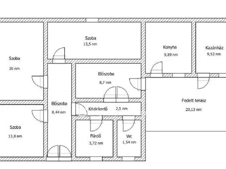
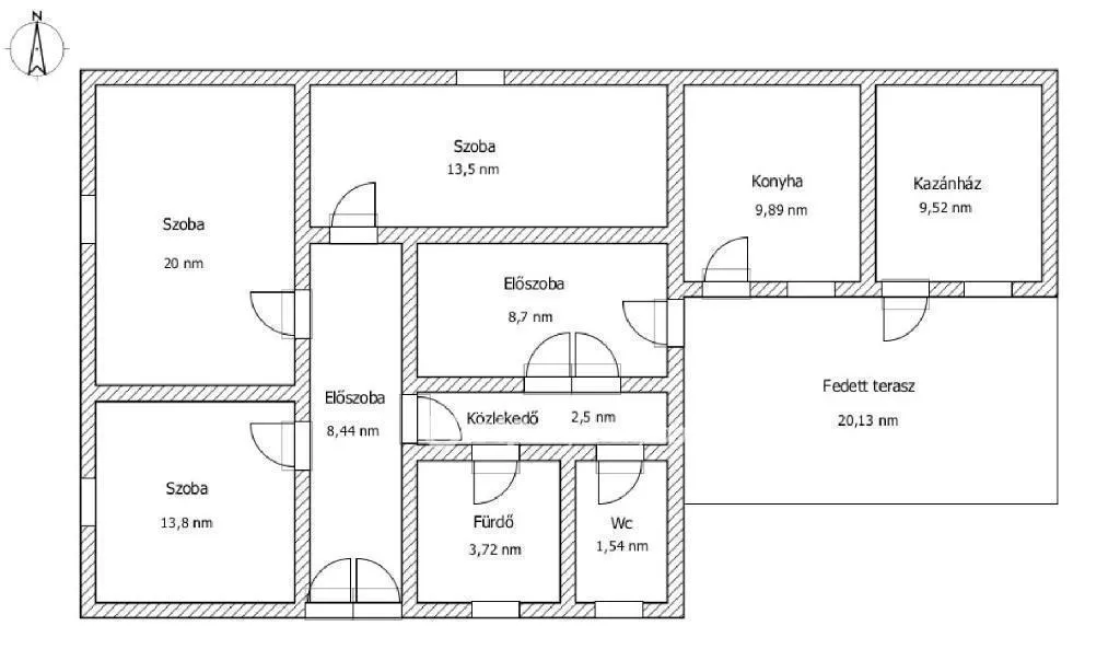
Eladásra kínálunk Csongrád-Csanád Vármegyében Fábiánsebestyénen egy 84 nm-es 3 szobás családi házat a központban, még is csendes környezetben. A ház 948 nm-es tágas telken található, tipikus kádár kocka ház, mely 1975-ben épült és 2020-ban felújításon esett át. Vegyes tüzelésű fűtés rendszer lett kialakítva, az összes nyílászáró ki lett cserélve és redőnyök is kerültek az ablakokra. A külső homlokzat szigeteléssel és nemesvakolattal lett ellátva. A vegyestüzelés mellett a házban cserépkályha is található a hidegebb napokra. Különálló wc, fürdőszoba, 3 szoba, konyha, kazánház, melléképület, fedett terasz és gondozott kert tartozik a házhoz. Közelben óvoda, iskola orvosirendelő, boltok megtalálhatóak. Amennyiben az OTP Ingatlanpont kínálatából választ, számíthat szakmai támogatásunkra a teljes vételi folyamat során az adásvételi szerződés megkötésétől a hitel-ügyintézésen át az ingatlan átadásáig. Az OTP Ingatlanpont kedvezményes pénzügyi konstrukciókkal áll ügyfelei rendelkezésére, és VIP-szolgáltatást nyújt az OTP-hiteltermékek , valamint CSOK-ügyintézésben. Kedvező hitelajánlatokkal (BABAVÁRÓ hitel, piaci hitel, és szabadfelhasználású hitel) várjuk jelentkezését. Számos konstrukció közül választhatnak. Irodáink Szentes, Petőfi utca 12. A buszmegálló felől, és Csongrád, Fő utca 54. szám alatt várja a személyes érdeklődőket. ***VÁLASSZUK KI EGYÜTT AZ ÖNNEK LEGMEGFELELŐBB AJÁNLATOT! BANKI SORBAN ÁLLÁS NÉLKÜL! *** Referencia szám: M291786
user avatar

Orovecz Józsefné

Phone+36-30-535-2•••
user avatar

Szentes Petőfi utca 12 - OTP Ingatlanpont Iroda

Phone+36704550•••

Nincs weboldal

Azonositó: M291786

Tulajdonságok

Ingatlan altípusa
családi ház
Építés éve
1975
Kilátás
utcára néző

Fenntarthatóság

Fűtés
gázkazán

Fábiánsebestyén, Magyarország

Közvetítőknek

Kapcsolat

info@mydreamhome.hu

2025 Dream Home Global, Kft.

ÁSZFAdatvédelmi szabályzatSüti szabályzatÁrak magánszemélyeknek